For Lease or Sale • Industrial
ORANGE BLOSSOM
520 W. Orange Blossom Trail Apopka, FL 32712
Construction
----
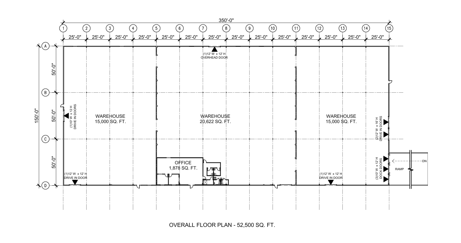
Total Available Space
15,000SF to 52,500 SF
Building Size
52,500
CONTACT FOR DETAILS
Building Specifications
Building Size:
52,500
Building Dimensions:
350' X 150'
Office Space:
Yes
Clear Height:
24’
Column Spacing:
50’ x 25’
Employee Parking:
52 Spaces
Loading Doors:
4 Grade Level 2 Over sized Grade Level
Drive In Door:
3 Truck Well Doors
Power:
1000 Amps
Warehouse Lighting:
LED
Zoning:
Industrial
