For Lease • Industrial
390 S. Ronald Reagan Blvd, Longwood, FL 32750
390 S. Ronald Reagan Blvd, Longwood, FL 32750
Construction
Industrial
Total Available Space
20,592 SF
Building Size
20,592 SF
CONTACT FOR DETAILS
Building Specifications
Building Size:
20,592 SF
Construction Type:
Industrial
Building Dimensions:
124’ x 150’
Loading Design:
Front & Rear Load
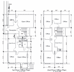
Office Space:
2-Story Office Totaling 3,434 SF
Clear Height:
22'
Column Spacing:
25’ x 50'
Employee Parking:
30 Spaces
Loading Doors:
4 Dock High Doors
Drive In Door:
1 (20’x12’) Dock High 1 (12’x12’) Dock High 1 Ramp
Power:
400 Amps
Warehouse Lighting:
LED
Sprinkler:
ESFR
Zoning:
Industrial
